Vo výstavbe!

Voľný

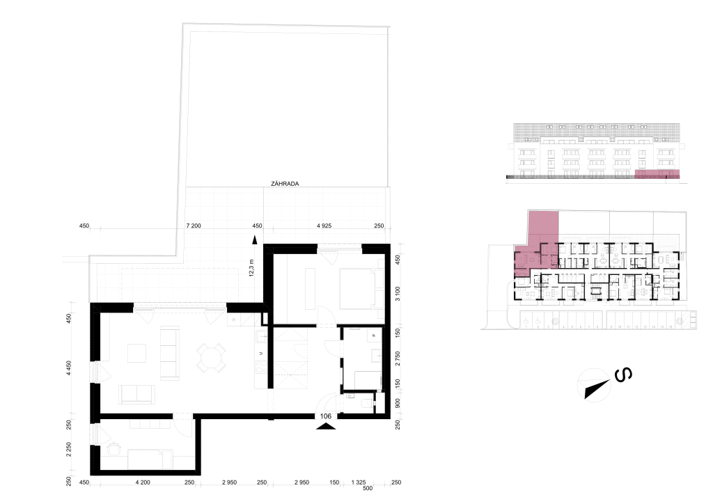
Byt: 106

1. podlažie / 3 izbový

Celková výmera

183,63 m2

Chodba

11,49 m2

WC

1,19 m2

Kúpeľňa

4,67 m2

Obývacia izba a kuchyňa

32,75 m2

Izba 1

15,27 m2

Izba 2

9,45 m2

Pivničná kobka

3,00 m2

Záhrada

105,81 m2

Cena

333 900,00 € Cena s DPH

Mám záujem

Vstupné bezpečnostné dvere s požiarnou odolnosťou s rozmermi 900/2020 mm. Dverné krídlo je osadené do oceľovej zárubne s viacbodovým uzamykaním.

Interiérové dvere značky Centurion s možnosťou výberu z farebných variantov z ponuky investora.

Finálne vrstvy sú súčasťou vybavenia bytov (kúpeľňa, WC) s možnosťou farebnej kombinácie obkladu a dlažieb od renomovaného výrobcu Villeroy&Boch rada ATLANTA.

Nášľapná vrstva terás je riešená mrazuvzdornou protišmykovou dlažbou. Podlaha balkónov je riešená mrazuvzdornou protišmykovou dlažbou alebo náterom s protišmykovou úpravou.

V obytných miestnostiach je betónový poter s finálnou nášľapnou vrstvou. Finálnu nášľapnú vrstvu v obytných miestnostiach tvorí laminátová podlaha od výrobcu EGGER AC4, 8 mm s možnosťou výberu farby z ponuky investora.

Bytové jadro a WC je kompletne vybavené, čo zahŕňa: dlažby, obklady, sanitu a príslušenstvo od výrobcov Villeroy&Boch a GROHE (sprchovací kút/vaňa, umývadlo, WC, umývadlo vo WC, vodovodné batérie).  Výber je možný z farebných a produktových štandardov investora.

Interiérový komfort zabezpečia zvukovo a tepelno-izolačné trojsklá vsadené do 6 komorového profilu (vybrané okná v hliníkovom prevedení).

Z exteriéru hnedý odtieň a z interiéru biely.

Tienenie: elektrické exteriérové žalúzie.

V podkroví budú umiestnené strešné okná s elektrickým ovládaním.

Napojenie na optickú sieť (internet + TV) s vyvedením optickej zásuvky v každom byte.

Súčasťou štandardu bude SMART video vrátnik.
Zásuvky a vypínače budú predpripravené pre budúcu inštaláciu ovládacích SMART zariadení.

  • Dodávka tepla a TÚV bude do objektu zabezpečená prostredníctvom kombinácie tepelného čerpadla (vzduch-voda), plynového kotla a zásobníkov na TV a ÚK.
  • Vykurovanie a chladenie bytov bude zabezpečené stropným systémom kúrenia a chladenia. Regulácia teploty bude riešená samostatným termostatom v každej izbe.
  • V kúpeľni a WC bude inštalované teplovodné podlahové vykurovanie a osadený radiátor doplnený výhrevnou elektrickou špirálou.

Postup financovania

  1. 20 % podpis Zmluvy o budúcej kúpnej zmluve
  2. 20 % zápis rozostavanej stavby do katastra
  3. 50 % právoplatné kolaudačné rozhodnutie
  4. 10 % dokončenie bytov do štandardu

Procesom financovania
Vás bezplatne prevedie:

Rudolf Franek

0905 164 957
franek@macula.sk

Všetko potrebné vybavíte na jednom mieste.

uver

Úver

poistenie

Poistenie

vinkulacia

Vinkulácia

kataster

Kataster

Hypokalkulačka

150 000 € 325 000 € 500 000 €
10 000 € 255 000 € 500 000 €
10 000 € 255 000 € 500 000 €
3 % 4 % 5 %
%
10 20 30
Rok.

Mesačná splátka:0,00 €

sporitelna-logo

Slovenská sporitelňa je financujúcou bankou projektu ktorá má pre klientov pripravené zvýhodnené podmienky hypotekárneho financovania.

Procesom financovania
Vás bezplatne prevedie:

Rudolf Franek

0905 164 957
franek@macula.sk

Všetko potrebné vybavíte na jednom mieste.

uver

Úver

poistenie

Poistenie

vinkulacia

Vinkulácia

kataster

Kataster

1
Kontakt

Dohodnutie stretnutia s predajcom investora.

2
Zmluva o budúcej zmluve

Podpis zmluvy o budúcej kúpnej zmluve s úhradou 20 % kúpnej ceny.

3
Štandard bytu

Výber vyhotovenia štandardu, v ktorom bude byt dokončený.

4
Kúpna zmluva

Podpis zmluvy o prevode vlastníctva po dokončení bytu a uhradení 100 % kúpnej ceny.

Parkovanie Katalóg štandardov

106

Podobné voľné byty

Odeko_LM_01_05
https://bohunka.sk/ochrana-sukromia/

    Chcete sa dozvedieť o Bohúnke viac?

    Napíšte nám, radi vám všetky vaše otázky zodpovieme

    Ochrana osobných údalov

    Správa odoslaná

    Ďakujeme za záujem, budeme Vás kontaktovať.

    footer-juraj-trizna

    Ing. Juraj Trizna

    +421 918 176 750 info@bohunka.sk

    map-pin-line

    Predajné miesto

    Kancelária ODEKO
    M. Martinčeka 4701/2,
    031 01 Liptovský Mikuláš(LIVE center, 7 .poschodie)

    bytovka